Big 70 Plan 2

093 A1682

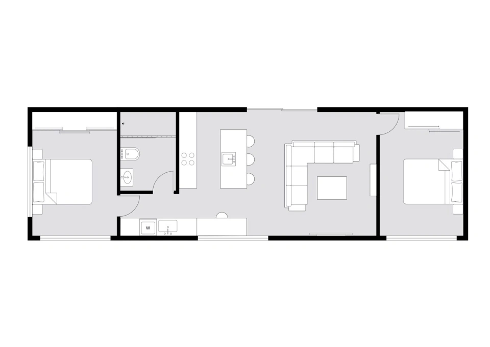
Bigger Tiny Homes

Big 70

📏 70m2

🛏️ 2 Bedroom

🍴 1 Kitchen

🛁 1 Bathroom

📚 1 Study nook

Overview

Using a similar footprint to the Big 60 2 bed, this plan is a little longer (15m rather than 13.4m in length), which results in an expansive 70m2 of floorspace.

This additional space creates a roomy, open plan living area, and includes the addition of an island bench in the kitchen. With base and overhead cabinetry, solid timber benchtops and quality fixtures and fittings – this spacious, light- drenched area takes ‘tiny’ living to another level.

Both bedrooms have ample storage with built-in robes, space for a queen bed, and large windows for loads of natural light.

The extra space also allows for a full size bathroom with deluxe, extended shower bay.

This plan is the perfect solution for anyone looking to create a functional and inspiring space for full time living.

Specification

Floor Area Dimensions Rooms Accommodates Best For Price
70m2 15m long 2 bedrooms with built in robes Single / couple / small family Short-term accommodation Enquire for pricing
4.45m wide Full bathroom & laundry Rental
3.6m high Full kitchen AirBnb
(External measurements Living & dining Teenage retreat

Floor Plan

Tiny Homes Tasmania Bigger 70 Plan 1 2